logo
N1.RU — новая улучшенная версия Е1.Недвижимость
Чтобы вернуться на старый сайт Е1.Недвижимость, перейдите по ссылке в нижней части сайта N1.RU
  • Продажа
  • Аренда
  • Новостройки
  • Журнал
  • Компании
  • Шаблоны документов
  • Налоговый вычет
  • Еще
  • Личный кабинет
    • Регистрация на Циан
    • Дзержинский
  • Добавить объявление
Тип недвижимости
Дзержинский
Поиск в любом из этих мест
ул. Поклонная, Дзержинский
Количество комнат
Цена
  1. Недвижимость в Дзержинском
  2. Продажа
  3. Квартиры
  4. Вторичка
  5. 3-комнатные
  6. ул. Поклонная
  7. 8 объявлений

Продажа трехкомнатных квартир на улице Поклонная в Дзержинском

За все время
Сортировка по умолчанию
СпискомСписком
ТаблицейТаблицей
На картеНа карте
Открыть поиск по карте

По вашему запросу объявлений не найдено

1/8
3-к, Поклонная, 3 Показать на карте
Дзержинский
Продается 3-комнатная квартира, расположенная по адресу: Дзержинский, Поклонная, 3. Комнаты изолированные. Есть лоджия, гардеробная. Санузел раздельный. Свободная продажа, никто не прописан. 2 взрослых собственника.
63 м2
2 / 9 этаж
Панель
  • Показать контакты
  • Добавить в избранное
63 м2
2 / 9 этаж
Панель
9 600 000 
152 381 /м2
    1/30
    3-к, Поклонная, 3 Показать на карте
    Дзержинский
    Арт. 19642086 Продаю трехкомнатную квартиру в прекрасном районе. Один собственник, никто не прописан. Без перепланировок. В квартире практически все останется, идеальное состояние. Основные преимущества:1. Расположение: Наша квартира находится в одном из лучших районов города, с развитой инфраструктурой и удобным транспортным сообщением. В шаговой доступности есть магазины, школы, детские сады, парки, аптеки и прочие необходимые объекты.2. Отличное состояние: Квартира не требует ремонта, все комнаты светлые и просторные. Простая и функциональная планировка позволит вам воплотить свои дизайнерские идеи без лишних хлопот.3. Отсутствие перепланировок: Вся квартира соответствует первоначальной планировке, что обеспечивает ее безопасность и удобство для жизни. Вы сможете сделать изменения по своему усмотрению, если это потребуется.4. Разумная цена: Мы предлагаем квартиру по идеальной цене для данного района. Это отличная возможность приобрести жилье по привлекательной стоимости и сделать выгодную инвестицию.Не упустите шанс стать обладателем этой замечательной трехкомнатной квартиры. Звоните прямо сейчас, чтобы организовать просмотр и обсудить все дополнительные детали.
    63 м2
    9 / 9 этаж
    Панель
    • Показать контакты
    • Добавить в избранное
    63 м2
    9 / 9 этаж
    Панель
    9 750 000 
    154 517 /м2
      1/26
      3-к, Поклонная, 3 Показать на карте
      Дзержинский
      С документами всё хорошо.Свободная продажа, один взрослый собственник, собственность более 20 лет, полная стоимость в договоре, выписка до сделки, никаких перепланировок и обременений, ипотека возможна.Хорошая планировка (окна во двор и на улицу), комнаты все изолированные, раздельный санузел, имеется кладовая комната, лоджия застеклена.Площадь указана без учёта лоджии.Хорошие соседи.Центр города, рядом рынок, 5 минут пешком до карьера/горнолыжного спуска.Во дворе детские площадки, всегда есть место для парковки автомобиля.Развитая инфраструктура: множество магазинов, школа, детский сад, банк и т.п., всё рядом.
      62 м2
      5 / 9 этаж
      Панель
      • Показать контакты
      • Добавить в избранное
      62 м2
      5 / 9 этаж
      Панель
      9 650 000 
      154 400 /м2
        1/13
        3-к, Поклонная, 3 Показать на карте
        Дзержинский
        Продается 3-комнатная квартира, расположенная по адресу: Дзержинский, Поклонная, д.3, на 2 этаже 9-этажного дома. Комнаты изолированные. Есть лоджия, гардеробная. Санузел раздельный.
        63 м2
        2 / 9 этаж
        Панель
        • Показать контакты
        • Добавить в избранное
        63 м2
        2 / 9 этаж
        Панель
        10 450 000 
        165 873 /м2
          1/46
          3-к, Поклонная, 3 Показать на карте
          Дзержинский
          Арт. 94871401 Продаю трехкомнатную квартиру в прекрасном районе. Один собственник, никто не прописан. Без перепланировок. В квартире идеальное состояние. Основные преимущества:1. Расположение: Наша квартира находится в одном из лучших районов города, с развитой инфраструктурой и удобным транспортным сообщением. В шаговой доступности есть магазины, школы, детские сады, парки, аптеки и прочие необходимые объекты.2. Отличное состояние: Квартира все комнаты светлые и просторные. Простая и функциональная планировка позволит вам воплотить свои дизайнерские идеи без лишних хлопот.3. Отсутствие перепланировок: Вся квартира соответствует первоначальной планировке, что обеспечивает ее безопасность и удобство для жизни. Вы сможете сделать изменения по своему усмотрению, если это потребуется.4. Разумная цена: Мы предлагаем квартиру по идеальной цене для данного района. Это отличная возможность приобрести жилье по привлекательной стоимости и сделать выгодную инвестицию.Не упустите шанс стать обладателем этой замечательной трехкомнатной квартиры. Звоните прямо сейчас, чтобы организовать просмотр и обсудить все дополнительные детали.
          63 м2
          9 / 9 этаж
          Панель
          • Показать контакты
          • Добавить в избранное
          63 м2
          9 / 9 этаж
          Панель
          10 650 000 
          168 780 /м2
            1/26
            3-к, Поклонная, 3 Показать на карте
            Дзержинский
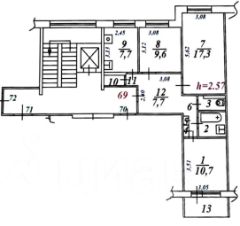
            Продается 3-комнатная квартира, общей площадью 68.3 кв.м. (с учетом лоджии) на 9 этаже девятиэтажного панельного дома.3 комнаты 17.3 кв.м. 10.7 кв.м. и 9.6 кв.м. кухня 7.7 кв.м. раздельный санузел, просторный коридор, лоджияИнфраструктура: в шаговой доступности (5-10 мин. ходьбы) детский сад, школы (лицей 6 парус, лицей 3), поликлиники, городская больница, МФЦ, фитнес центр, стадион, парк ''Сказка'', городской рынок и множество магазинов. В 500 метрах обустроенный карьер с комфортными пляжами и базой для активных видов отдыха, горнолыжная школа. Рядом с домом остановка автобусов - до ближайших станций метро (Котельники, Люблино, Алма-атинская, Кузьминки).Документы основания: Приватизация 2007 года, 2 взрослых собственника, зарегистрированные лица выпишутся до сделки, свободная продажа, полная стоимость
            68 м2
            9 / 9 этаж
            Панель
            • Показать контакты
            • Добавить в избранное
            68 м2
            9 / 9 этаж
            Панель
            8 990 000 
            131 625 /м2
              1/46
              3-к, Поклонная, 3 Показать на карте
              Дзержинский
              Арт. 94871401 Продаю трехкомнатную квартиру в прекрасном районе. Один собственник, никто не прописан. Без перепланировок. В квартире идеальное состояние. Основные преимущества:1. Расположение: Наша квартира находится в одном из лучших районов города, с развитой инфраструктурой и удобным транспортным сообщением. В шаговой доступности есть магазины, школы, детские сады, парки, аптеки и прочие необходимые объекты.2. Отличное состояние: Квартира все комнаты светлые и просторные. Простая и функциональная планировка позволит вам воплотить свои дизайнерские идеи без лишних хлопот.3. Отсутствие перепланировок: Вся квартира соответствует первоначальной планировке, что обеспечивает ее безопасность и удобство для жизни. Вы сможете сделать изменения по своему усмотрению, если это потребуется.4. Разумная цена: Мы предлагаем квартиру по идеальной цене для данного района. Это отличная возможность приобрести жилье по привлекательной стоимости и сделать выгодную инвестицию.Не упустите шанс стать обладателем этой замечательной трехкомнатной квартиры. Звоните прямо сейчас, чтобы организовать просмотр и обсудить все дополнительные детали.
              63 м2
              9 / 9 этаж
              Панель
              • Показать контакты
              • Добавить в избранное
              63 м2
              9 / 9 этаж
              Панель
              10 350 000 
              164 025 /м2
                1/46
                3-к, Поклонная, 3 Показать на карте
                Дзержинский
                Арт. 94871401 Продаю трехкомнатную квартиру в прекрасном районе. Один собственник, никто не прописан. Без перепланировок. В квартире идеальное состояние. Основные преимущества:1. Расположение: Наша квартира находится в одном из лучших районов города, с развитой инфраструктурой и удобным транспортным сообщением. В шаговой доступности есть магазины, школы, детские сады, парки, аптеки и прочие необходимые объекты.2. Отличное состояние: Квартира все комнаты светлые и просторные. Простая и функциональная планировка позволит вам воплотить свои дизайнерские идеи без лишних хлопот.3. Отсутствие перепланировок: Вся квартира соответствует первоначальной планировке, что обеспечивает ее безопасность и удобство для жизни. Вы сможете сделать изменения по своему усмотрению, если это потребуется.4. Разумная цена: Мы предлагаем квартиру по идеальной цене для данного района. Это отличная возможность приобрести жилье по привлекательной стоимости и сделать выгодную инвестицию.Не упустите шанс стать обладателем этой замечательной трехкомнатной квартиры. Звоните прямо сейчас, чтобы организовать просмотр и обсудить все дополнительные детали.
                63 м2
                9 / 9 этаж
                Панель
                • Показать контакты
                • Добавить в избранное
                63 м2
                9 / 9 этаж
                Панель
                10 250 000 
                162 441 /м2
                  Распечатать

                  Вместе с этим также ищут:

                  Продажа квартир в Дзержинском Продажа однокомнатных квартир в Дзержинском Продажа комнат в Дзержинском Продажа гаражей в Дзержинском Продажа вторички - квартиры в Дзержинском Квартиры в новостройках в Дзержинском

                  🏠 Как купить трехкомнатную квартиру в Дзержинском на N1?

                  • ✔ В поисках объявления о продаже или покупке квартир в Дзержинском?
                  • ✔ На N1 размещены 8 квартир
                  • ✔ Чтобы купить или продать недвижимость, воспользуйтесь формой поиска, фильтрами или быстрыми ссылками.

                  💸 Сколько стоит трехкомнатная квартира в Дзержинском?

                  • 🟢 Средняя цена продажи трехкомнатных квартир - 9,96 млн ₽
                  • 🟢 Минимальная стоимость за 1 м2: 156,75 тыс ₽

                  📚 Какая площадь трехкомнатных квартир?

                  • Наибольшая площадь: 68 м²
                  • Минимальная площадь: 63 м²