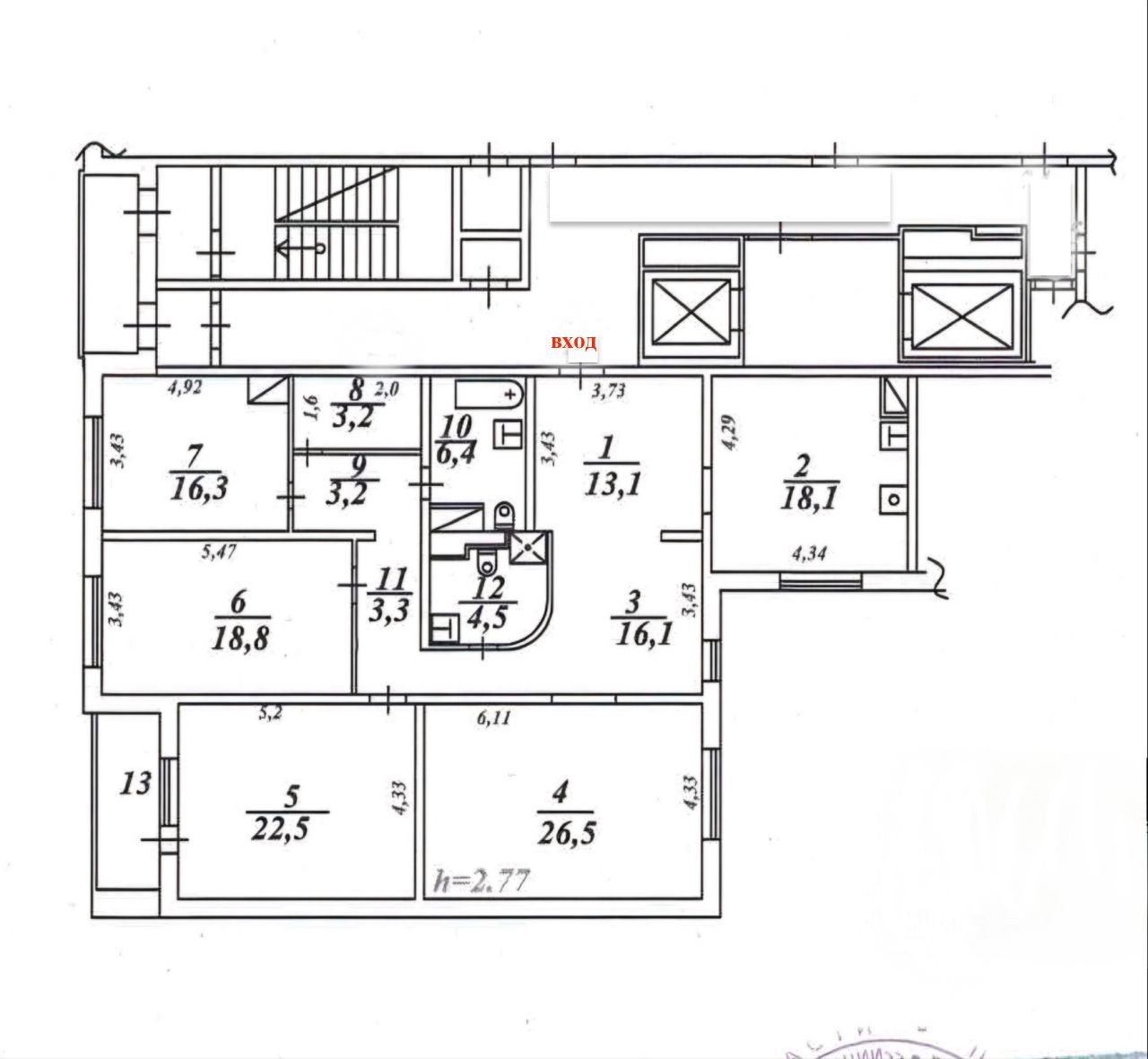
Продаётся 4-х комнатная квартира общей площадью 152 кв.м.в добротном кирпичном доме 1999 года постройки
Описание: 152 кв.м. без учета лоджии
Гостиная комната 26,5 кв.м. (изолированная)
Три изолированные спальные комнаты 22,5 кв.м., 18,8 кв.м. и 16,3 кв.м. кухня 18,1 кв.м. Два санузла гардеробная просторная прихожая и холл
Один взрослый собственник
Документы основания - ДКП 2019 года
Полная стоимость в ДКП
Планировка соответсвует БТИ
Подходит под ипотеку
Квартира в одной семье с момента постройки дома