Если цена в объявлении изменится, мы сразу сообщим вам об этом на электронную почту.
Нажимая «Подписаться», вы соглашаетесь с правилами.
продам 2-к, Угрешская, 32 ст113 500 000 ₽
22 дек
Дата публикации объявления
Обн. 6 фев
Дата обновления объявления
7
Количество просмотров (+ просмотры за сегодня)
144 385 ₽/м²
Чистая продажа
Термин "Чистая продажа" означает, что в квартире никто не прописан или
есть куда выписаться и вывезти вещи. Это лучший вариант для покупателя.
Вероятность срыва сделки минимальна.
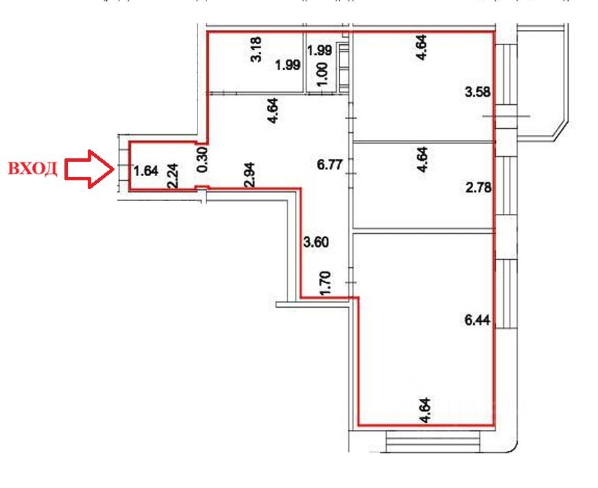
ДОМ У ЛЕСА! Продается просторная 2-х комнатная квартира. Общая площадь - 93,5 кв.м, жилая площадь - 42,8 кв.м (большая комната 29,9 кв.м. с гардеробной и маленькая комната - 12,9 кв.м.), кухня 16.6 кв.м. которая позволяет оборудовать комфортнуюобеденную зону, большой застекленный балкон с выходом из, кухни, раздельный санузел, холл, в котором поместится зона гостиной. При желании легко можно сделать 3-комнатную квартиру. В квартире выполнен качественный ремонт. Установлен кухонный гарнитур с кухонной техникой и сантехника. В каждой комнате выводы под кондиционеры. Просторная входная группа дома оборудована удобным пандусом. Подъезд красивый и уютный, есть место для хранения колясок и велосипедов. Дом оборудован 2-мя пассажирскими и 1-м грузовым лифтом. Дежурит консъерж.
ДОМ У ЛЕСА! Продается просторная 2-х комнатная квартира. Общая площадь - 93,5 кв.м, жилая площадь - 42,8 кв.м (большая комната 29,9 кв.м. с гардеробной и маленькая комната - 12,9 кв.м.), кухня 16.6 кв.м. которая позволяет оборудовать комфортнуюобеденную зону, большой застекленный балкон с выходом из, кухни, раздельный санузел, холл, в котором поместится зона гостиной. При желании легко можно сделать 3-комнатную квартиру. В квартире выполнен качественный ремонт. Установлен кухонный гарнитур с кухонной техникой и сантехника. В каждой комнате выводы под кондиционеры. Просторная входная группа дома оборудована удобным пандусом. Подъезд красивый и уютный, есть место для хранения колясок и велосипедов. Дом оборудован 2-мя пассажирскими и 1-м грузовым лифтом. Дежурит консъерж. В доме подземный паркинг с мойкой и отдельным лифтом. Большая наземная парковка. Для безопасности жильцов дома выход в лес через калитку с ключом. Видеонаблюдение. В шаговой доступности все для комфортной жизни: школа и детский сад, поликлинника, магазины, аптеки, банки, кафе и проч. Мега Белая Дача, Гипермаркет Глобус, Аутлет в 7 мин.на авто. В лесу оборудованы освещенные прогулочные дорожки, детские и спортивные площадки. У дома обводненный Дзержинский карьер с пляжами и местами для купания. Транспортная доступность: автобусы до метро Котельники, Кузьминки, Люблино. Два выезда на МКАД. 1 собственник, полная стоимость в договоре, без обременений. ЗВОНИТЕ! Отвечу на интересующиевопросы и подберу удобное для просмотра время!